一走进这条小巷,仿佛穿越了时光的隧道,回到了那个充满烟火气息的古老时代,在这古色古香的环境中,“老街味道”静静地伫立其中,吸引着每一个过客的目光,它的外观古朴,门楣上挂着一块招牌,上面刻着“老街味道”四个大字,仿佛在诉说着关于老济阳的悠悠往事。
走进店内,你会被这里的环境所吸引,店内布置别具一格,既保留了传统建筑的韵味,又融入了现代设计的元素,木质的桌椅、斑驳的墙面、老旧的挂画,每一处都透露着历史的痕迹和岁月的沉淀,你可以品尝到最地道的济阳美食,感受到最纯粹的老街风情。
这家小店不仅环境独特,更以其美食而闻名遐迩,这里的菜品以传统济阳菜为主,融合了现代烹饪技艺,每一道菜都堪称一绝,无论是色香味俱佳的招牌菜,还是精致可口的点心小吃,都能让人回味无穷,你可以品尝到济阳的独特味道,感受到这座城市的独特魅力。
除了美食之外,“老街味道”还承载着一段段动人的故事,这里不仅是品尝美食的场所,更是一个交流情感、分享故事的空间,你可以和朋友们在这里畅谈天下事,也可以和陌生人分享你的故事,每一个角落都充满了故事和温情,让人流连忘返。
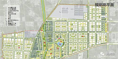
这一切都得益于济阳开发区的最新规划,在这个规划中,不仅注重城市的发展和创新,更注重保护传统文化和历史遗迹,正是这样的规划理念,让“老街味道”得以保留下来,让更多的人能够感受到这座城市的独特魅力。
在济阳开发区的最新规划中,像“老街味道”这样的小店将得到更多的关注和支持,这里将会有更多的特色小店涌现出来,形成一个充满活力和创意的街区,这里将成为济阳的一张名片,成为每一个过客必打卡的地方。
如果你来到济阳开发区,不妨走进这条小巷,探访一下“老街味道”,你不仅能品尝到美食,还能感受到现代城市与传统文化交融的魅力,这就是济阳开发区的魅力所在,也是这座城市独特的魅力所在,你也可以在这里探索更多的惊喜和故事,体验济阳的独特风情。



还没有评论,来说两句吧...